Private residence, completed 2015, Mijas, Spain
Client: Private Contractor: José D. García Solórzano Technical Architect: Emilio Domingo Corpas Photographer: Fernando Alda
Photography by Fernando Alda
‘El Meandro’
The house is organized within one meandering form made of natural stone, creating three volumes with an open space interwoven between them.
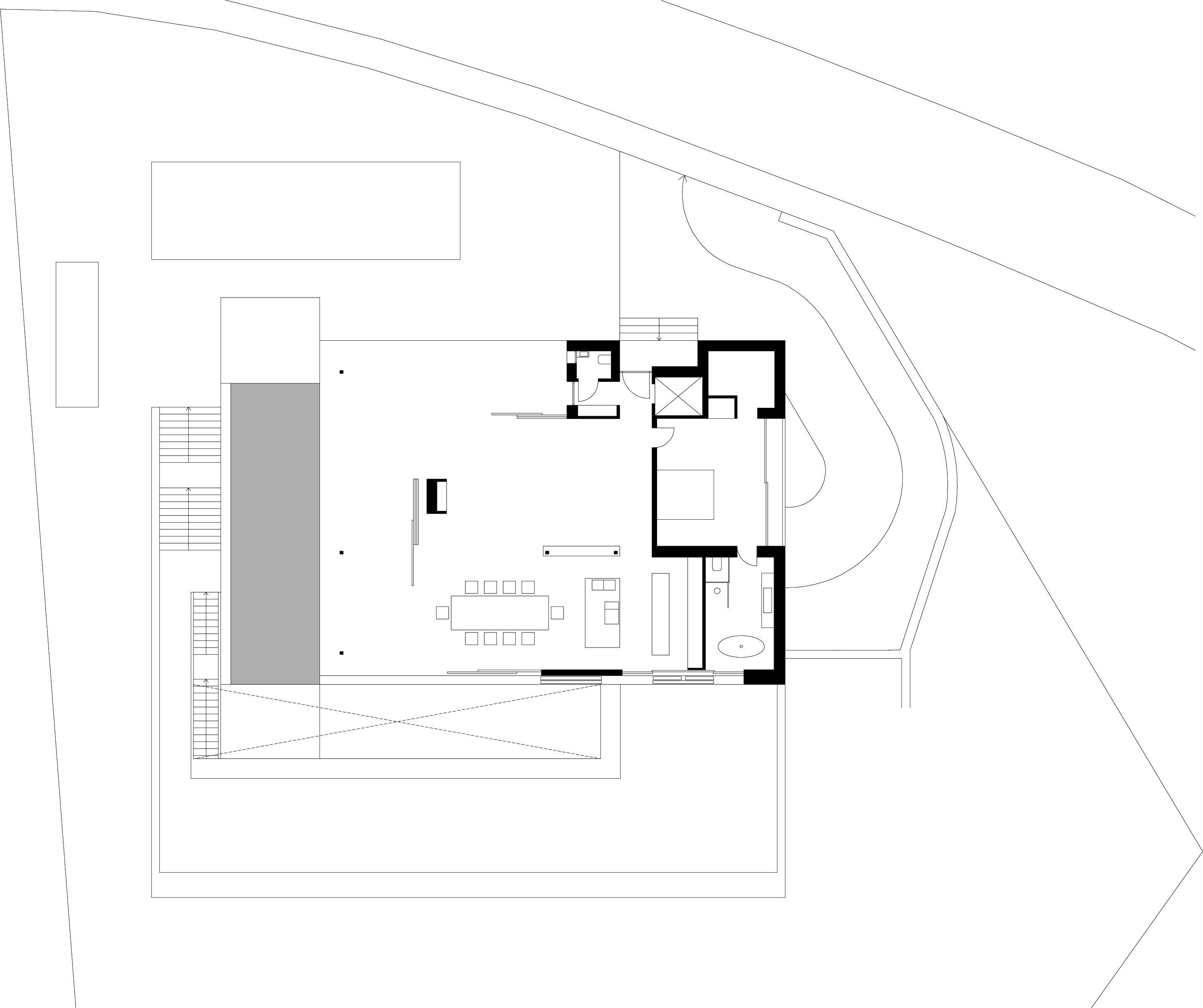
Perched on top of the hill, the first volume contains the main living space of the house. The living, eating and kitchen areas are located on this level in an open plan. From here you have spectacular sea and mountain views. The living space extends into the exterior becoming a deck and swimming pool. A large, over-sailing roof connects the inside and outside and protects the interior from the summer sun. You can ‘hop off’ the deck onto to the south-west garden.
Within the ‘Meander’ the second volume contains the swimming pool. Its shape and function connects to the third volume containing the guest area.
The meandering form ends with the third volume further down the hill and is pushed into the landscape. It contains three guest rooms with en suite bathrooms, guest living room and service functions. From here you can enjoy private views to the sea.
The open spaces in-between the three volumes and the hill are more protected and enclosed. Here you can find an exterior lounge area, parking, entrance with lift, a private patio for guests and a roof garden.
Upper level floor plan
Middle level floor plan
Lover level floor plan
Seccion



